SOLD OUT
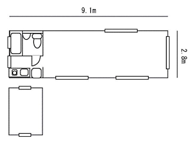
| モデル名 | AJRパークロフト |
|---|---|
| タイプ | □ 住居タイプ(トレーラーハウス・家型) □ 9.1m×2.8m(約7.5+1.5坪) |
| 装備 | 3点式ユニットバス・IHヒーター付ミニキッチン・冷蔵庫・網戸付きペアガラス窓・カーテン・土足対応クッションフロアー・換気扇・内外照明器具・ロフト・梯子 |
| 備考 |
[※]は必須入力になります

-
AJパーク TS6
7,500,000(税抜き)
-
-
- 11/21 10:27
展示用の住居モデルが完成しました。前回モデルのこうしたらいいかなと思ったところを変えました。
続きを読む
-
- 05/19 10:05
- 事務所用の中古トレーラー
中古車のリフォームが終了しました。今はやめていますが、サンエースさんが製作したトレーラーなので物としてはしっかりしていますが、ただ窓が少ないかな。屋根の張替え・外壁の全闘争済みです。
続きを読む
-
- 05/15 10:28
- 展示場を開きます。
岐阜県も緊急事態宣言から外れましたのでトレーラーハウス展示場を通常通りの営業をします。 現場に出て不在時もございますので前もってご連絡いただけますととすかります。
続きを読む
-
- 05/05 14:56
- トレーラーハウス展示場の休業
特定警戒都道府県に指定が外れておりませんのでしばらく展示場を休業させていただきす。 ご来店になられたお客様にはご迷惑をおかけし申し訳ございません。
続きを読む
















>> 一覧へ戻る












